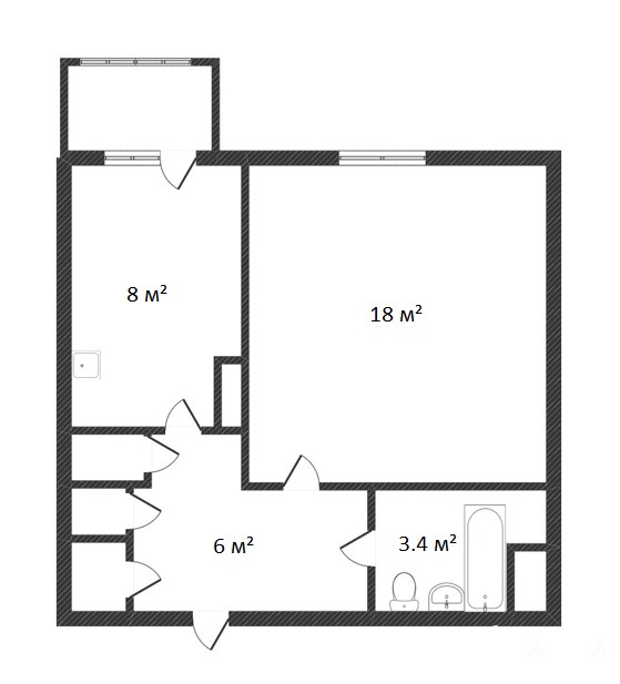
- 37 м²
- Площадь
- 18 м²
- Жилая площадь
- 8 м²
- Площадь кухни
- 5/9
- Этаж
6 500 000 ₽
173 797 ₽ за м²
ID объявления 12120186
Поделиться
Добавить в избранное
            
        
        Продается однокомнатная квартира, в восточном микрорайоне города.
В квартире выполнен капитальный ремонт: заменена проводка на медную, выровнены стены и полы, ванная комната полностью выложена кафелем. Также по всей квартире натяжные потолки, на стенах обои. на полу кварц-винил. весь ремонт выполнен в светлых тонах.
При продаже остается вся необходимая мебель и техника для проживания. благодаря чему можно заехать в квартиру в быстрые сроки. без дополнительных затрат.
Дом находится в микрорайоне с развитой инфраструктурой, в шаговой доступности Школа №17. детские сады Непоседы и Дети Арктики, Новая детская поликлиника, через дорогу взрослая поликлиника №2. во дворе новая детская и спортивная площадка, все необходимые магазины и остановки общественного транспорта находятся в 5 минутах ходьбы. также через дорогу находится студенческий город с образовательными учреждениями, 
Для просмотра и более подробной информации квартиры звоните!
         
                
Дата обновления: 9 октября 2025